
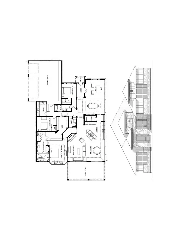
Custom home currently under construction on a private 1.5-acre greenbelt lot, perfectly positioned behind mature oak trees and Cow Creek—so your backyard neighbors are basically squirrels and birds with excellent manners. This thoughtfully designed 4-bedroom home (plus formal dining and a study for pretending you work from home) offers approximately 2,800 square feet of stylish living space and, yes, it’s outside the floodplain—because peace of mind should come standard. The home is placed to maximize privacy and scenic views, with the rear of the property overlooking the creek and those majestic oaks that look great in every season (no filter required). Built for both everyday living and hosting your future legendary gatherings, the open floor plan features generously sized bedrooms, modern finishes, and plenty of space to show off your impeccable taste. A rare chance to own a custom new construction home on acreage with greenbelt views. Bonus: depending on timing, you may even get to pick some finishes—because everyone deserves to feel like a HGTV star at least once.
Based on information submitted to the MLS GRID as of 2026-01-22 21:01:07 UTC. All data is obtained from various sources and may not have been verified by broker or MLS GRID. Supplied Open House Information is subject to change without notice. All information should be independently reviewed and verified for accuracy. Properties may or may not be listed by the office/agent presenting the information.
The information being provided is for consumers' personal, non-commercial use and may not be used for any purpose other than to identify prospective properties consumers may be interested in purchasing. Based on information from the Austin Board of REALTORS®. Neither the Board nor ACTRIS guarantees or is in any way responsible for its accuracy. All data is provided "AS IS" and with all faults. Data maintained by the Board or ACTRIS may not reflect all real estate activity in the market.
Last Updated: . Source: ACTRIS
Provided By
Listing Agent: Kaitlin McWhorter (#745390), Phone: (512) 575-3644
Listing Office: Compass RE Texas, LLC (#3788)

Get an estimate on monthly payments on this property.
Note: The results shown are estimates only and do not include all factors. Speak with a licensed agent or loan provider for exact details. This tool is sourced from CloseHack.